Peterborough Road, Whittlesey

  • £380,000
Peterborough Road, , Whittlesey, PE7 1LE
  • House: Semi-Detached
  • Property Type
  • 5
  • Bedrooms
  • 2
  • Bathrooms
  • 2
  • Reception Rooms

Peterborough Road, Whittlesey

Peterborough Road, , Whittlesey, PE7 1LE
  • £380,000

Overview

  • House: Semi-Detached
  • Property Type
  • 5
  • Bedrooms
  • 2
  • Bathrooms
  • 2
  • Reception Rooms
  • Assisted Move available
  • Bespoke designed
  • Choice of fixtures and fittings with early reservations
  • Flooring included
  • Part Exchange welcomed
  • Quartz Worktops
  • Turfed Gardens
  • Underfloor Heating

Description

The Stamford is a Four/Five Bedroom Semi detached home built in a brick and block construction with integral garage, dedicated home office and sociable family kitchen.

A unique collection of just nine, four and five bedroom family homes nestled in the Cambridgeshire town of Whittlesey. Situated in the heart of the Fens, Whittlesey Gate is set within a picturesque rural location, but with excellent facilities within the village and easy access to the local towns such as Peterborough and Spalding for further facilities.

Each home has been designed to suite a variety of needs, with modern design and thoughtful layouts.
Cooper Lennard Homes, we believe you shouldn’t have to compromise when buying your new home and so we provide a high quality specification including Underfloor heating, Quartz worktops, tiling, integrated appliances and bifold doors to selected plots as standard.

Depending on build stage, all purchasers will have the opportunity to personalise their homes with a range of choices from our selected ranges including;

Door styles and door furniture. Bathroom and vanity units, taps and tiling styles and colours. Kitchen cupboard and worktop styles and colours, tiled splashbacks. Flooring throughout from our ranges of carpet and LVT in selected locations throughout the property.

Build completion is estimated to be at the end of Summer/Autumn.

Whittlesey , dating from the Bronze age is an attractive town with a mix of architecture spanning several centuries.

South of the town, a branch of the River Nene meanders alongside the Manor Fields and is a perfect spot to see boats moor and take a stroll.

The Buttercross in the Marketplace is one of the most striking buildings and a reminder of Whittlesey’s rich trading and agricultural history.

Each January Whittlesey celebrates the old agricultural custom of Straw Bear dancing with a three day festival that grows bigger and better each year. ‘The Bear’, a man in a costume made of straw, is accompanied by his keeper and several hundred dancers and musicians in a procession around the town and stops off for refreshments in pubs along the route.

Whittlesey Gate is also just a 25 minute drive away from the cathedral city of Peterborough, the largest city in East Anglia which offers a greater selection of high street shopping, restaurants, bars and entertainment venues.

Property Documents

Peterborough Road, Whittlesey

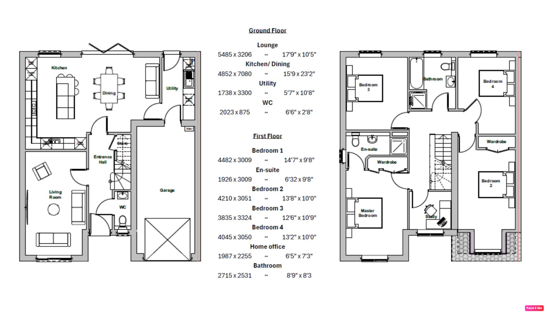
Floor Plans

image

Description:

  • Address Peterborough Road, , Whittlesey, PE7 1LE
  • Postcode PE7 1LE

Mortgage Calculator

Monthly
  • Mortgage
  • Council Tax
  • Home Insurance
£
£
%
£
£

Schedule a Viewing

Your information

By submitting this form I agree to Terms of Use

360° Virtual Tour

What's Nearby?

Contact Information

View Listings
Orton Waterville
  • Orton Waterville
  • 01733 852257

Enquire About This Property

By submitting this form I agree to Terms of Use

Similar Listings

Dovecote Close, Peterborough

  • £197,500
  • Beds: 2
  • Bath: 1
  • 1034 sqft

Jayne Gardens, Crowland, Peterborough

  • Offers in excess of £245,000
  • Beds: 3
  • Baths: 2

Compare listings

Compare
Search
Price Range From To
Orton Waterville
  • Orton Waterville